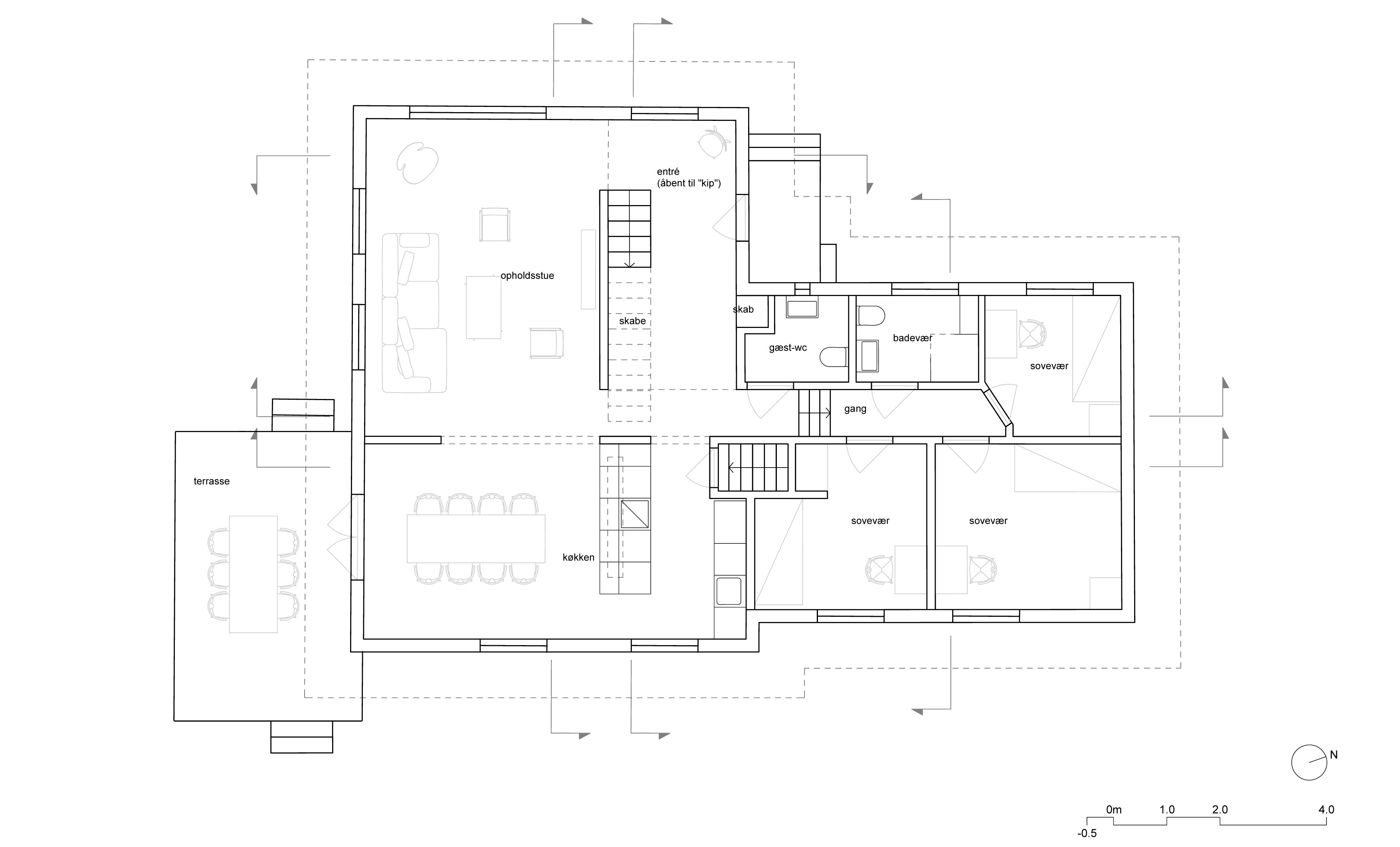
Renovation of a villa from the 1960’ies on the island of Funen. The project includes reorganization of the floorplans, new kitchen and bathrooms as well as exterior renovation, new roof, doors, windows and so on. The commission includes a second phase, in which a smaller office building will be erected in the garden.
Villa Strib, Middelfart
Bygherre: privat
Årstal: 2018
Status: Udført
Størrelse: 180 sqm
Type: privat bolig
Bygherre: privat
Årstal: 2018
Status: Udført
Størrelse: 180 sqm
Type: privat bolig



